Projects

Georgina Town Logo

Town of Georgina Planning Services

MLS has been retained by the Town of Georgina since 2022 to provide planning services, including processing and providing advice on Planning Act applications and various policy and administrative matters.

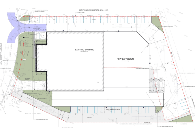
Treasure Mills Map

Treasure Mills, Aurora, ON

MLS was retained to manage applications for consent and site plan approval to facilitate the major expansion of their food product manufacturing operation.

Community Improvement Plan Logo

Town of St. Marys Community Improvement Plan - Housing

MLS has been retained to prepare a new Housing Community Improvement Plan for the Town. The Housing CIP will create strategic incentives with the goal of providing a full a range of housing options in St. Marys, with a focus on increasing the supply of affordable housing.

Mobirise

City of Cambridge Planning Services and Main/Dundas Secondary Plan

MLS was retained by the City of Cambridge to provide planning services, including processing and providing advice on Planning Act applications and various policy and administrative matters. MLS was also retained to assist the City and consulting team in completing the Main and Dundas Secondary Plan (2022 to 2024).

Mobirise

Town of Stouffville Planning Services

MLS was retained by the Town of Stouffville to provide planning services including processing and providing advice on major Planning Act applications, preparing meeting and decision notices, and preparing and presenting staff reports to Council (2020 to 2025).

Mobirise

Town of St. Marys Official Plan

MLS was retained to complete a comprehensive review and update of the Town’s Official Plan. MLS has developed and implemented an extensive public consultation program, and prepared several Discussion Papers covering a wide range of topic areas and issues, including compatible development, evaluating neighbourhood character, affordable housing, cultural heritage, economic development, natural heritage, urban design and sustainable development. The new Official Plan was approved by the Province in 2024.

Mobirise

Sabrina Park, Huntsville -
InvestorCentric Inc.

MLS was retained by InvestorCentric to assist in securing required planning approvals and the preparation of a planning justification report to support the development of an innovative residential village in the Town of Huntsville, consisting of:

- 24 townhouses + 147 apartments in 5 buildings
- Zoning By-law Amendment Application
- Plan of Condominium Application
- Site Plan Application

Mobirise

Town of St. Marys Planning Services

Since the Spring of 2017, MLS has been retained by the Town of St. Marys to provide planning services including processing and providing advice on Planning Act applications and various policy matters, preparing meeting and decision notices, and preparing and presenting staff reports to the Committee of Adjustment, Planning Advisory Committee and Council.

Mobirise

Township of Puslinch Zoning By-law

MLS was retained to assist in completing a comprehensive review of the Township’s Zoning By-law. MLS worked with the Township to develop a range of innovative zoning approaches with a focus on preparing a modern Zoning By-law that is easy to understand and interpret. A comprehensive Discussion Paper was prepared to address a wide range of topic areas and issues including zoning in urban centres and employment areas, home occupations/home industries, kennels, parking, second units, shipping containers, short term rentals and source water protection.

Mobirise

Township of Cavan Monaghan
Zoning By-law

MLS was retained to review and update the Township’s Zoning By-law. MLS developed and implemented a multifaceted public consultation strategy which brought together Council, staff and the community to create a By-law that supports the community building and economic development objectives of the Township, and protects the natural environment, rural landscapes and cultural heritage. The new Zoning By-law was enacted on October 1, 2018 with no appeals.

Mobirise

City of Cambridge River Road Secondary Plan, Zoning and Servicing Study

MLS was part of a diverse consultant team retained by the City to develop and evaluate development and servicing alternatives for the River Road neighbourhood. MLS worked with the City and the community to develop a recommended set of comprehensive Official Plan policies and Zoning By-law regulations to guide future development in the study area.

St Marys Community Improvement Plan

Town of St. Marys Community Improvement Plan

MLS was retained to prepare a new comprehensive Community Improvement Plan for the Town with the primary goal of modifying and expanding financial incentive programs in order to better meet the needs of St. Marys. Key objectives were established at the outset of the project and were successfully implemented through financial incentives to promote and support: the renewal and restoration of private buildings and properties; new local investment, partnerships, and funding; St. Marys built and cultural heritage, and unique character; efforts to reduce vacant commercial and industrial buildings and properties; and increased availability of attainable housing units. 

Mark has represented and provided advice to landowners, developers and municipalities across Ontario. Communities where Mark has provided advice and/or represented clients include:

Mobirise
Mobirise
Mobirise

Contact Information

Address:

Aurora, ON

Phone:

416-986-8890

E-mail:

mark@mlsplanning.ca

Web Design by Michael Stone 2023

Offline Website Creator